Rénovation B. - Nozay (44170)
Cette maison, située à Nozay (44170) a fait l'objet d'une rénovation complète.
Le projet étant de perdre le moins de surface intérieure, la solution a été d'isoler la maison par l'extérieur avec de la fibre de bois recouvert d'un enduit gratté blanc.
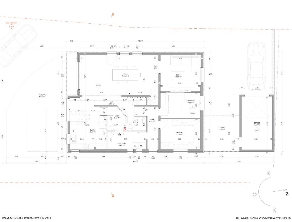
Le rez-de-chaussée qui était autrefois un grand garage a été entièrement aménagé en espaces de vies. L'étage a été réagencé pour les chambres, suites parentales et salles d'eau.
Dans la continuité du projet, un garage a été construit à l'arrière de la maison avec un carport en toiture terrasse reliant la maison à celui-ci.
Devant, une piscine a été construire au centre d'une toute nouvelle terrasse en bois exotique.
Liste des travaux :
_ isolation thermique par l'extérieur
_ réagencement de toutes la maison
_ construction d'un garage avec carport
_ construction d'une piscine avec terrasse
_ pose d'un bardage de chez Sylverwood en faux claire voie vertical
_ installation d'une nouvelle cuisine sur mesure
_ installation d'une cheminée

Demande de contact prise en compte.